Opportunité : Futur Projet de maison jumelée à Nocher-Route

Neu
Opportunité : Futur Projet de maison jumelée à Nocher-Route
Ref: LOT B Nocher-Route
999.995 €
Infoanfrage
Opportunité : Futur Projet de maison jumelée à Nocher-Route
Opportunité : Futur Projet de maison jumelée à Nocher-Route
Opportunité : Futur Projet de maison jumelée à Nocher-Route
Opportunité : Futur Projet de maison jumelée à Nocher-Route

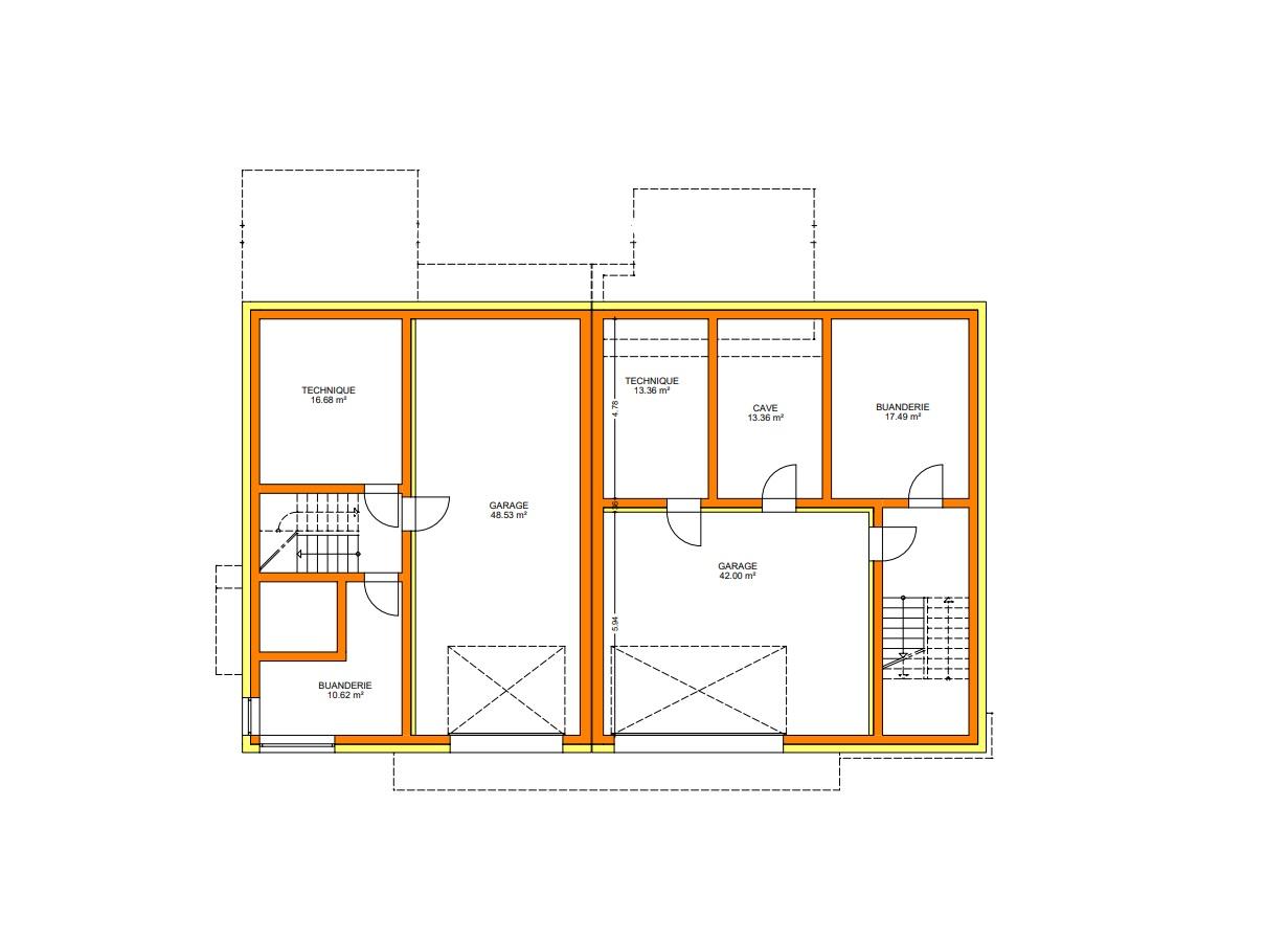
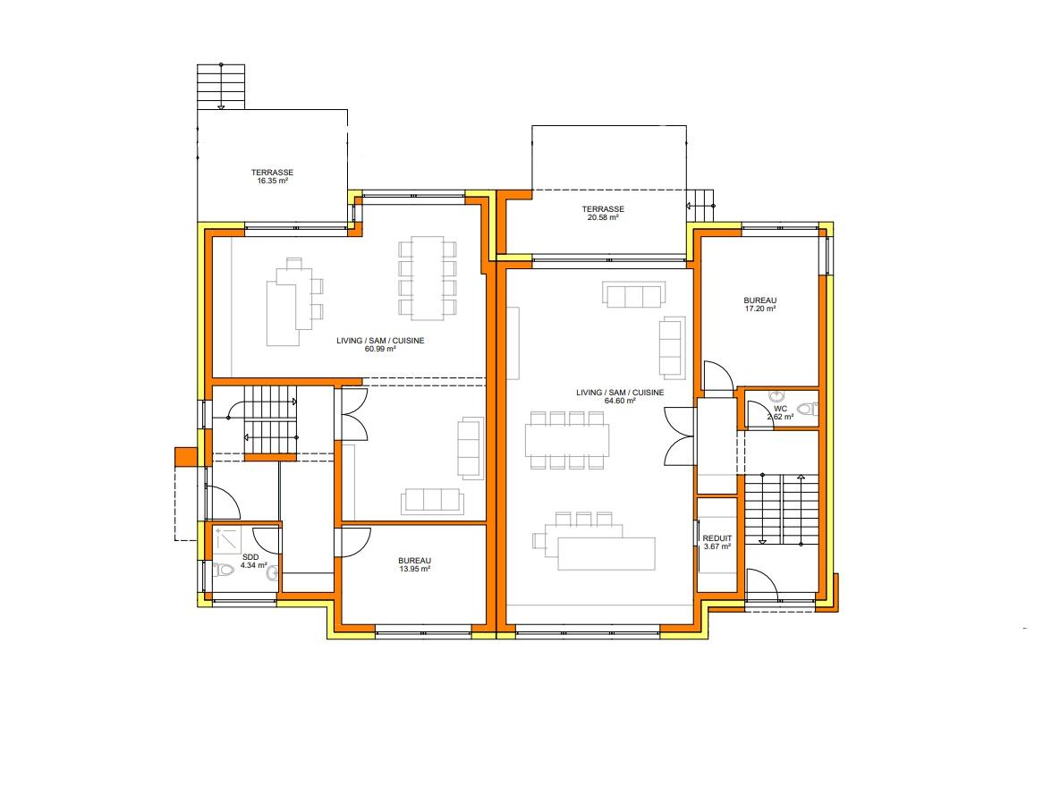
Future construction d'une maison jumelée à Nocher-Route
- Terrain 6.70 ares avec vue dégagée
- Construction en dur de qualité par une entreprise renommé de la région
- Surface totale de 260 m²
- Classe énergétique A-A
- Couverture toiture en tuile plate
- Menuiserie extérieure en PVC avec triples vitrages avec volets électrique
- Façade isolante en polystyrène et crépis de finition suivant choix du coloris
- Chauffage par pompe à chaleur air/eau, chauffage par le sol et radiateur, porte serviettes pour la salle de bain et douche
- Appareils sanitaire de qualité (suivant aménagement plans), suivant choix
- Système de ventilation (VMC)
- Elecricité complète y compris système d’alarme
- Enduit au plâtre pour l’habitation et chaux/ciment pour la partie sous-sol et salle d‘eau
- Faïencerie de qualité pour les sols (y compris sous-sol) et murs en salle d’eau
- Murs et plafonds en papiers peints fibre de verre lisse à peindre (sans structure), couleur suivant choix
- Menuiserie intérieure (portes) CPL (panneau d’aggloméré tubulaire, bord arrondi) apparence bois ou lisse, coloris suivant choix du fabriquant
- Dallage de terrasse grès cérame 60 x 60 x 2 cm suivant choix du fabriquant

ATTENTION: Pas compris les travaux d’infrastructures (murs de soutènement, bordures de délimitation, pavées à emboitement, pelouses, haies, ect……..)

Située dans la belle commune de Goesdorf en pleine croissance :
- bien située vers l'axe d'Ettelbruck, Wiltz, Bastogne, etc..
- 2 km de la nouvelle école fondamentale de Dahl
- 8 km du Lycée du Nord à Wiltz
- 10 km du centre commercial de Pommerloch

Energieeffizienz

Energieeffizienz

Wärmedämmung

Wärmedämmung

Einrichtung

  • Wäscheraum
  • Alarm
  • Garage
  • Keller
  • Garten
  • Speicher
  • Parking
  • Moderne Lüftungstechnik
  • Photovoltaikanlage
  • Zentralheizung
  • Fußbodenheizung

Eigenschaften

  • Gesamtfläche260
  • Balkon/Terrasse1
  • Grundstückfläche6.70
  • Wohnzimmer1
  • Esszimmer1
  • Badezimmer1
  • Duschzimmer1
  • Wohnfläche180
  • Schlafzimmer3
  • Abstellzimmer1
  • Gäste-WC1
  • Technikraum1
  • Stellplatz/Garage2
  • Parkplatz2
  • Keller1
  • FensterverglasungDreifach
  • KücheAusgestattet
  • HeizungLuftwärmepumpe
  • EnergieeffizienzklasseA
  • IsolierklasseA
  • ZustandNeubau